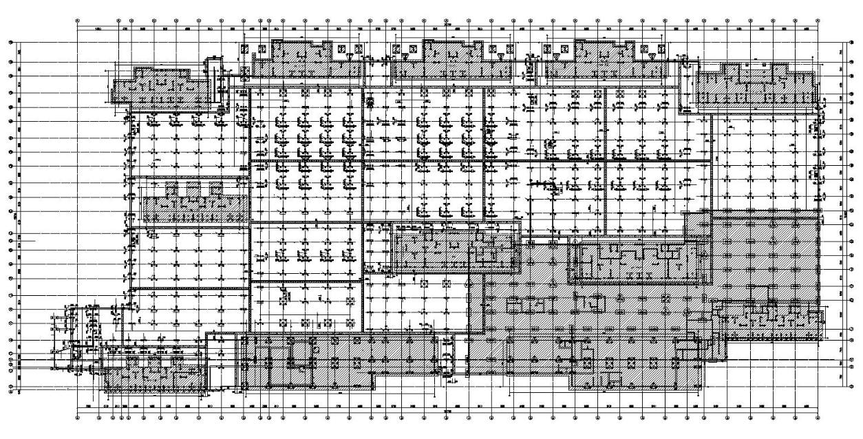
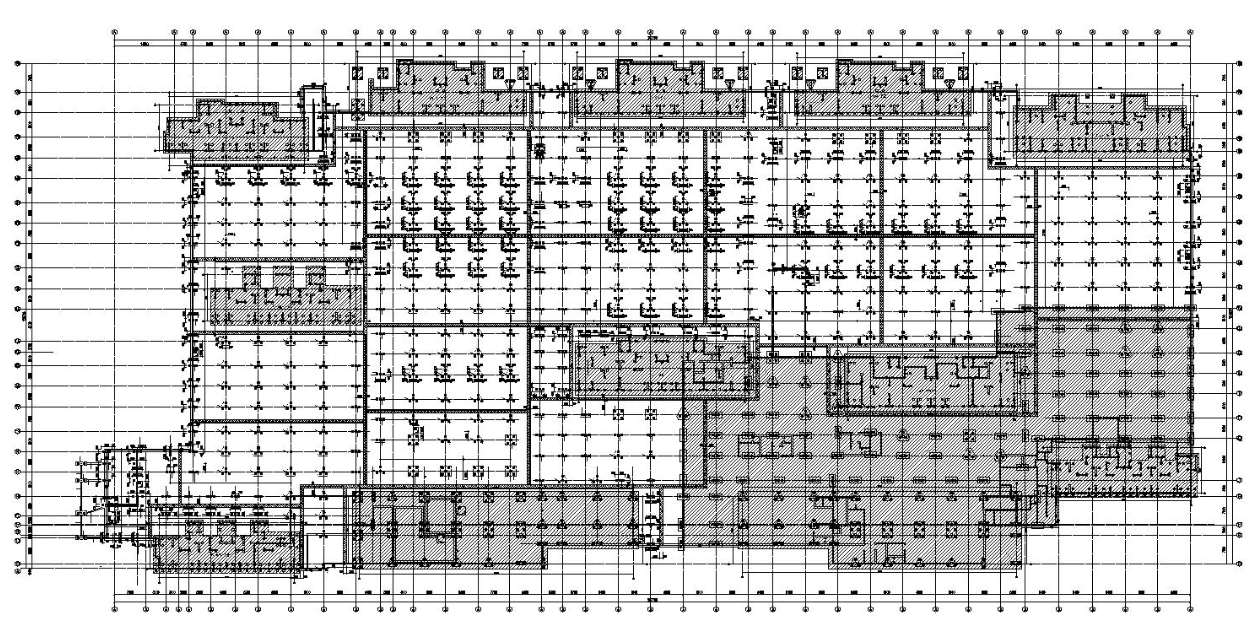
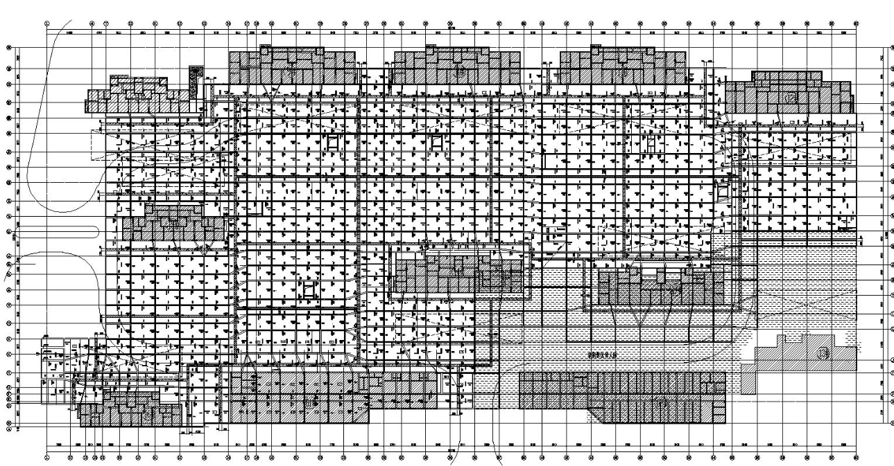
框架剪力墙结构地下车库施工图
框架剪力墙结构地下车库施工图包括:结构设计总说明、地下车库顶板配筋图、地下室顶板梁平法施工图、基础布置图等。
*免责声明:资源来源于网友上传,版权归原作者所有,商用请购买正版,本站仅供交流学习使用,如有侵权请联系删除!
温馨提示:
如果您已经兑换了此文档,则可
,或者点击右上角下载文件按钮进行下载。





