湖南某17层框剪四星级酒店建筑结构施工图
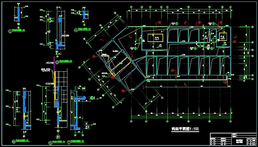
湖南某17层框剪四星级酒店建筑结构施工图包括:总平面图,建筑设计说明、构造做法表,建筑节能设计总说明,地下室平面图,平面图,立面图,剖面图,楼梯间大样图,车库入口坡道剖面图,卫生间大样图,节点大样图,门窗大样图,门窗表等32张建筑图;结构设计总说明,桩基础平面图,人工挖孔桩大样及说明,墙柱平面图,梁配筋平面图,板配筋平面图,楼梯构件组合图,大样图等共33张结构图。
*免责声明:资源来源于网友上传,版权归原作者所有,商用请购买正版,本站仅供交流学习使用,如有侵权请联系删除!
温馨提示:
如果您已经兑换了此文档,则可
,或者点击右上角下载文件按钮进行下载。





