儿童医院钢结构人行天桥建筑结构施工图
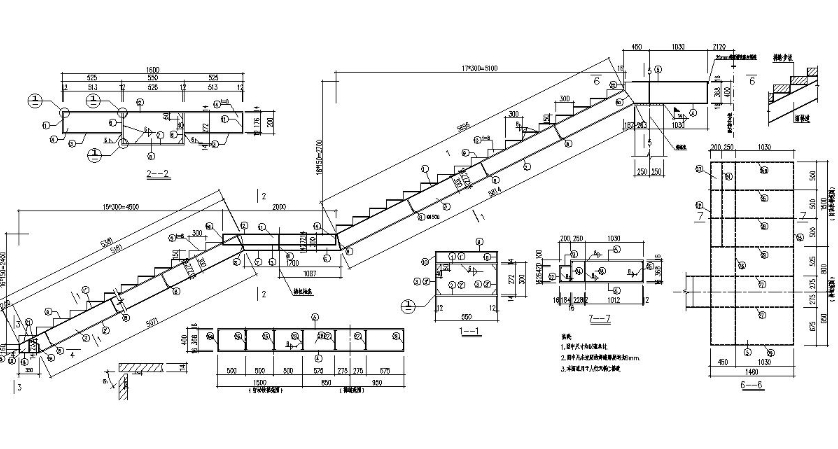
儿童医院钢结构人行天桥建筑结构施工图图纸包括:人行天桥工程数量表,人行天桥施工图设计说明(word格式),人行天桥踢打平面布置图,人行天桥改造平面布置图,人行天桥剖面,人行天桥钢箱梁延长构造,人行天桥梯道墩一般构造,人行天桥桩基钢筋构造,人行天桥桩基护壁钢筋构造,建筑设计总说明,天桥平面图,剖面图,共计18张图。
*免责声明:资源来源于网友上传,版权归原作者所有,商用请购买正版,本站仅供交流学习使用,如有侵权请联系删除!
温馨提示:
如果您已经兑换了此文档,则可
,或者点击右上角下载文件按钮进行下载。





