某商铺电气消防系统设计图CAD
某商铺电气消防系统设计图CAD。电气消防系统设计图说明:
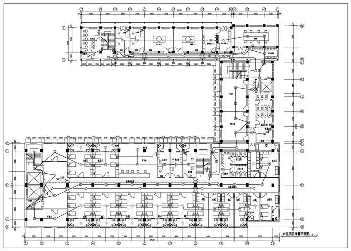
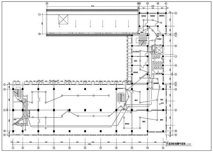
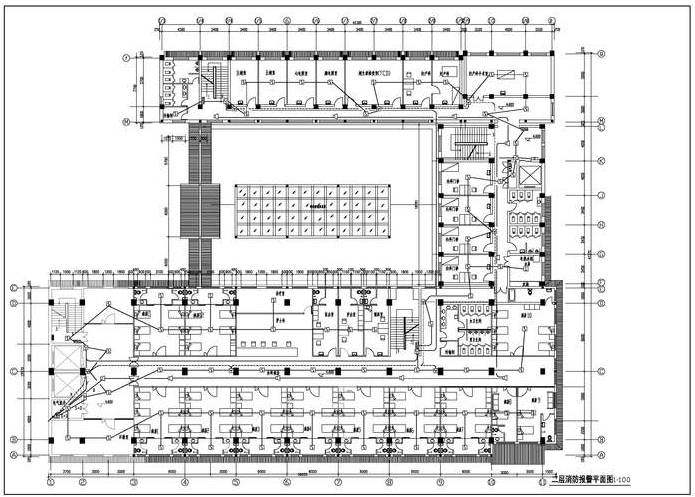
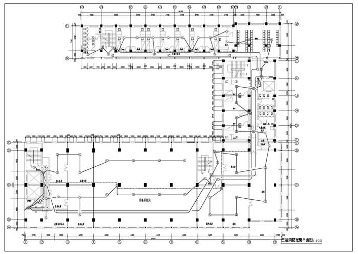
本工程为一类防火建筑,火灾自动报警系统的保护等级按一级设置,为总线报警系统.消防控制室设在首层,并设有直接通往室外的门.
系统组成:火灾自动报警系统;火灾应急广播系统;消防直通对讲电话系统;一般照明及正常电源切断控制系统;消防电源与应急照明.
消防控制室:
1)本工程消防控制室设在首层,并设有直接通往室外的出口.
2)消防控制室的报警控制设备由火灾报警控制主机,CRT显示器,打印机,应急广播设备消防直通对讲电话设备,电梯监控盘和电源设备等组成.
3)消防控制室可接收感烟,感温等探测器的火灾报警信号及手动报警按钮,消火栓按钮的动作信号.
4)消防控制室可显示消防水箱水位,显示消防水泵的电源及运行状况.
*免责声明:资源来源于网友上传,版权归原作者所有,商用请购买正版,本站仅供交流学习使用,如有侵权请联系删除!
温馨提示:
如果您已经兑换了此文档,则可
,或者点击右上角下载文件按钮进行下载。





